المواضيع اللي هنتكلم فيها في دورة التصميم الانشائي:
- قانون البناء الموحد
- أسس إقتراح وضع الأعمدة
- تصميم البلاطات اللاكمرية Flat Slab
- تصميم و نمذجة الأعمدة علي قوي محورية Axial force
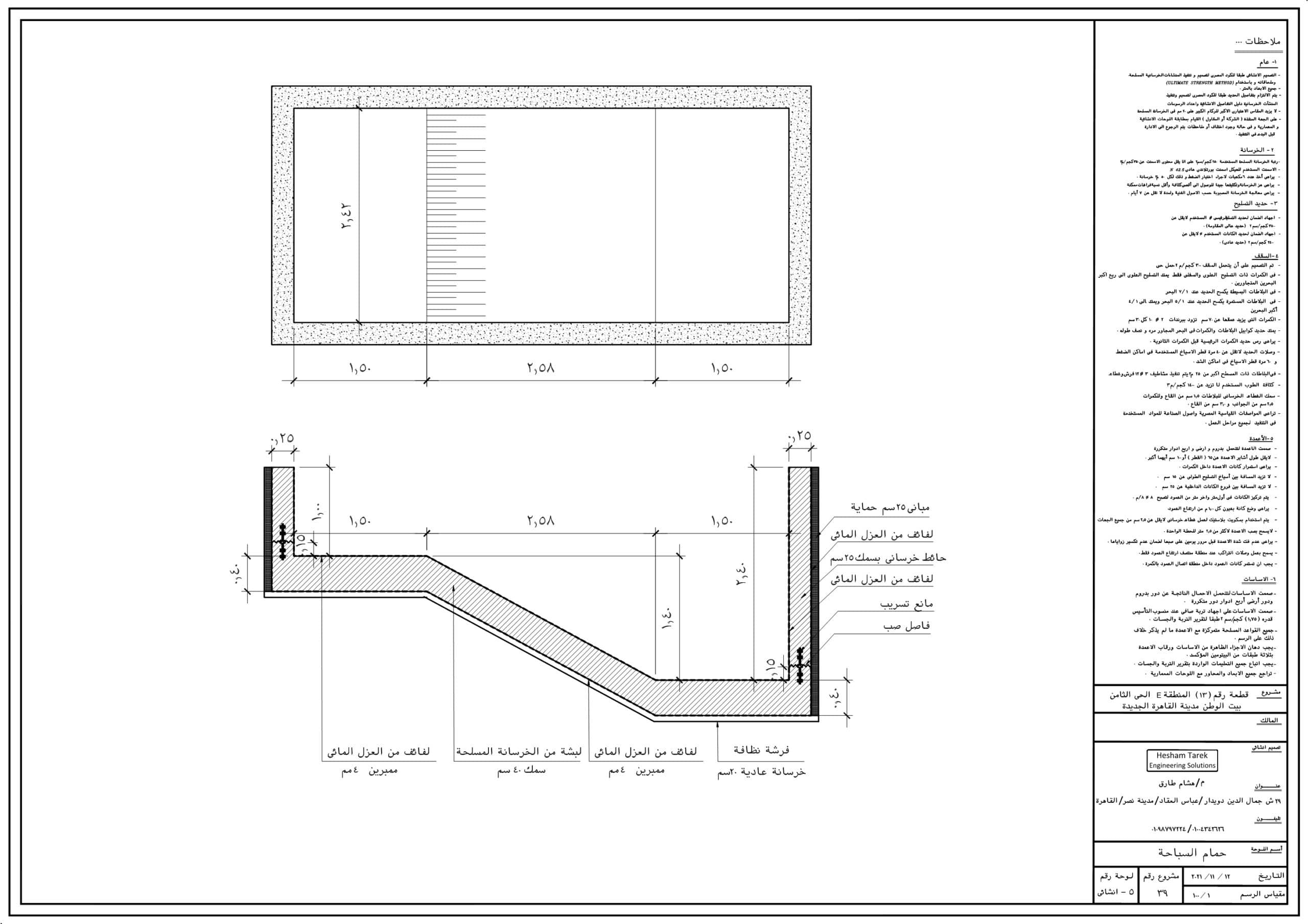
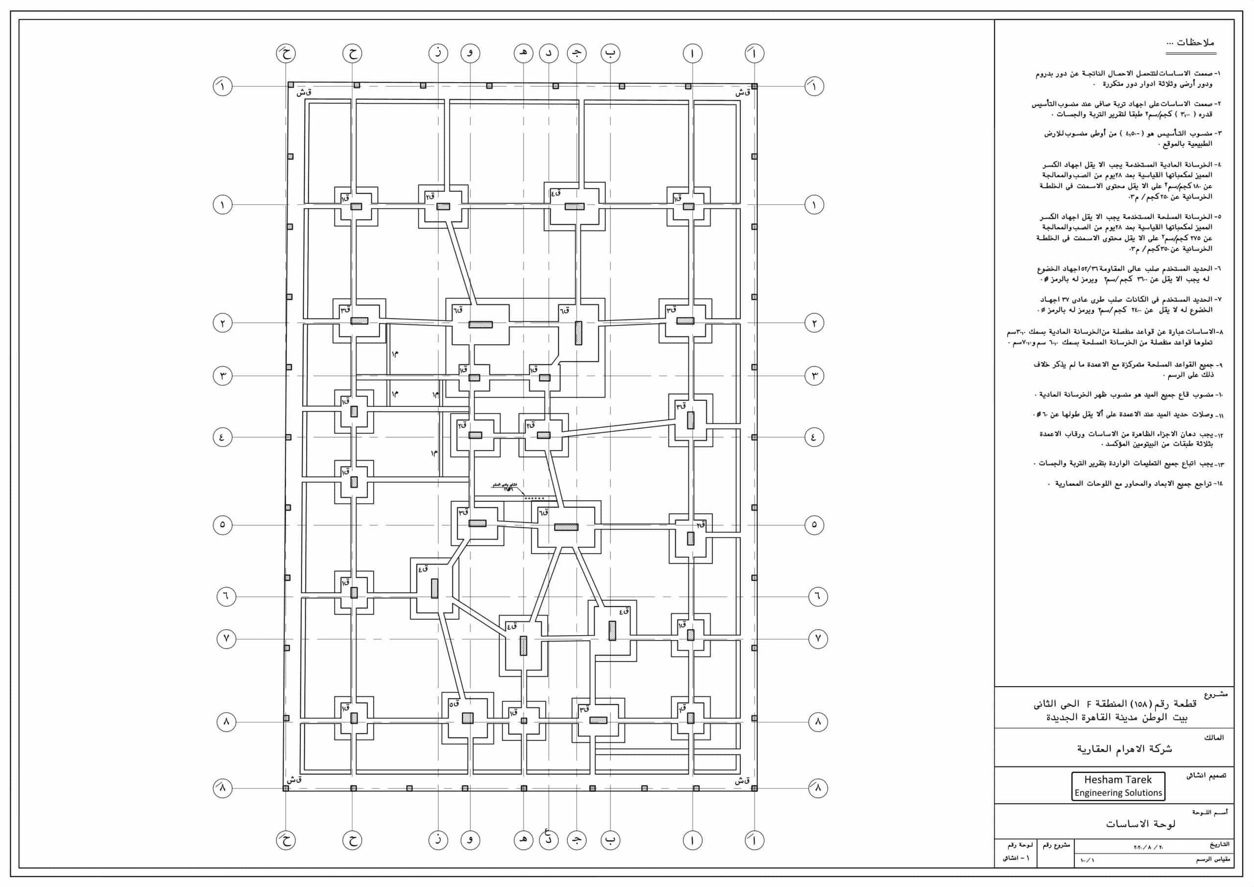
- تصميم و نمذجة القواعد المنفصلة isolated footing
- تصميم القواعد الشريطية Strip footing
- تصميم القواعد المشتركة Combined footing
- تصميم قواعد الجار Strap beam footing
- تصميم اللبشة Raft
- تصميم البلاطات المصمتة Solid Slab
- تصميم الكمرات علي الـ Flexure و الـ Shear و تعلم كيفية نمذجة الكمرات
- تصميم السلالم (قلبتين – ثلاث قلبات – حلزونية)
- تصميم البلاطات المفرغة Hollow Block Slab
- تصميم و نمذجة الكمرات المدفونة Hidden beams
- شرح مانيول لكيفية حساب أحمال الزلازل و الرياح
- تصميم حوائط القص Shear walls &Cores
- تصميم الأعمدة علي قوة محورية و عزوم M&N
- تصميم اللبشة علي قوة محورية و عزوم M&N
- تصميم اللبشة علي خوازيق Raft On Piles
- تصميم الإطارات Frames و تصميم Radial Frame
- تصميم الخزانات Tanks
المشاريع اللي هنشتغل عليها:
- تصميم فيلا Villa: هتتعلم إزاي تصمّم مبنى سكني صغير من دور أو دورين، بداية من اختيار النظام الإنشائي المناسب، توزيع الأعمدة، تصميم الأساسات والقواعد، البلاطات والكمرات، وكمان تطلع لوحات التسليح وتطبعها بالشكل اللي يليق بشغل احترافي. وده مهم جدًا لو ناوي تشتغل شغل خاص أو تبدأ فريلانس في مجال الفيلات.
- تصميم برج سكني High Rise Building: هتتعلم ازاي تتعامل مع مشروع متعدد الأدوار، وتفهم تأثير الأحمال الرأسية والأفقية، زي الزلازل والرياح، على التصميم. هتطبق نمذجة المبنى بالكامل على برامج زي ETABS و SAP، وكمان تصمّم عناصر زي الأعمدة، الكمرات، البلاطات، اللبشة، وحوائط القص (Shear Walls) علشان تحقق الاستقرار الإنشائي الكامل للمبنى.
- تصميم تغطيات وإطارات Frames: التغطيات من أهم التحديات في التصميم، خصوصًا لو المسافات كبيرة أو الحمل غير منتظم. هنا هتتعلم إزاي تصمم الإطارات الإنشائية بأنواعها (Frames)، وتوزّع الأحمال وتختار القطاع المناسب، وكمان هتفهم إزاي تصمّم العناصر المعرضة للعزوم والقص، وتعمل نمذجة كاملة على البرامج الإنشائية. مفيد جدًا لو هتشتغل في مشاريع صناعية أو قاعات مغلقة أو مولات.
- تصميم خزانات Tanks: الخزانات محتاجة دقة عالية في التصميم لأنها بتتعامل مع ضغوط سوائل. في الكورس هتتعلم تصميم الخزانات الأرضية (Ground Tanks) والعلوية (Elevated Tanks)، وتركّز على العناصر الأساسية زي الجدران، القواعد، البلاطات، والعوامل المؤثرة زي ضغط المياه، وتشققات الخرسانة، والتفريغ السريع للخزان.
البرامج اللي هنتعلمها :
- AutoCAD
- SAFE
- SAP
- ETABS
- SP-Column
- Excel (هنشتغل بيه على شيتات تصميم جاهزة)
كل البرامج هيتم شرحها تفصيلياً من البداية و لا يشترط أي معرفة سابقة بالبرامج الهندسية قبل الاشتراك في الكورس فيما عدا الإكسيل هيتم التطبيق على شيتات التصميم مباشرة.
دبلومة التصميم الانشائي مناسبة لمين؟
- طالب وعايز تدخل مشروع تخرج (خرسانة – أساسات – ستراكشر) وإنت فاهم كل التفاصيل.
- مهندس تنفيذ أو مكتب فني وعايز تدخل مجال التصميم الإنشائي كـ فريلانسر (Freelancer) وتاخد شغل تصميم إنشائي من داخل مصر أو من خارجها.
- مهندس حديث التخرج وبتدور على دورة تصميم انشائي كاملة تساعدك تبدأ صح.
- بتدور على دبلومة التصميم الانشائى معتمدة ومجربة في السوق.
بشكل عام لو بتدور على افضل كورس تصميم انشائي فيه كل اساسيات التصميم الانشائي اللي تؤهلك تشتغل كـ مهندس تصميم إنشائي محترف سواء جوه مصر أو بره فالكورس ده مناسب ليك جدًا.
ليه تختار دبلومة التصميم الانشائي مع المهندس هشام طارق؟
علشان ببساطة دي مش مجرد دورة تصميم انشائي كاملة، دي دبلومة قوية ومجربة بتشرحلك كل حاجة من البداية للنهاية بأسلوب سهل وعملي. الكورس أونلاين بالكامل، يعني تقدر تتعلم في أي وقت ومن أي مكان براحتك، من غير ما تلتزم بمواعيد أو تضيّع وقتك في التنقل.
والمميز أكتر إنك بتدفع مرة واحدة بس والاشتراك بيكون مدى الحياة، وده أحسن بكتير من الكورسات اللي بتخلص مدتها وبتضطر تدفع تاني. يعني تقدر ترجع تشوف الشرح وقت ما تحب، سواء بتراجع قبل شغل أو بتحضر لمشروع.























