تاريخ إنجاز المشروع : 3-5-2021
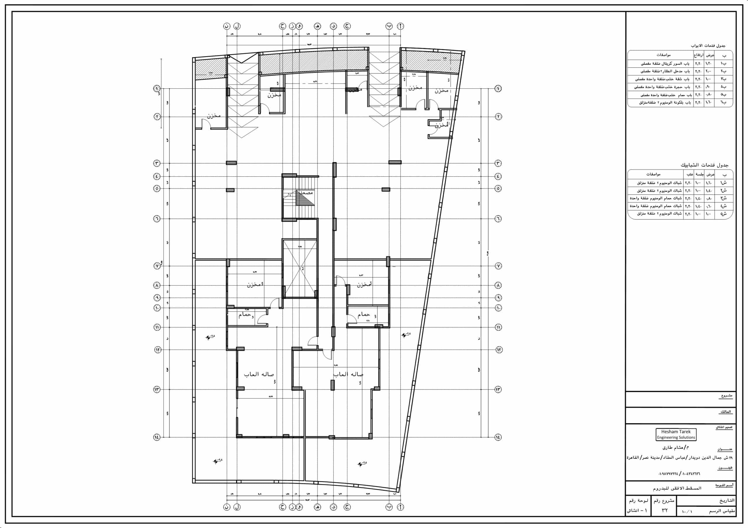
قطعة رقم M-61 الحي الثامن بيت الوطن التجمع الخامس
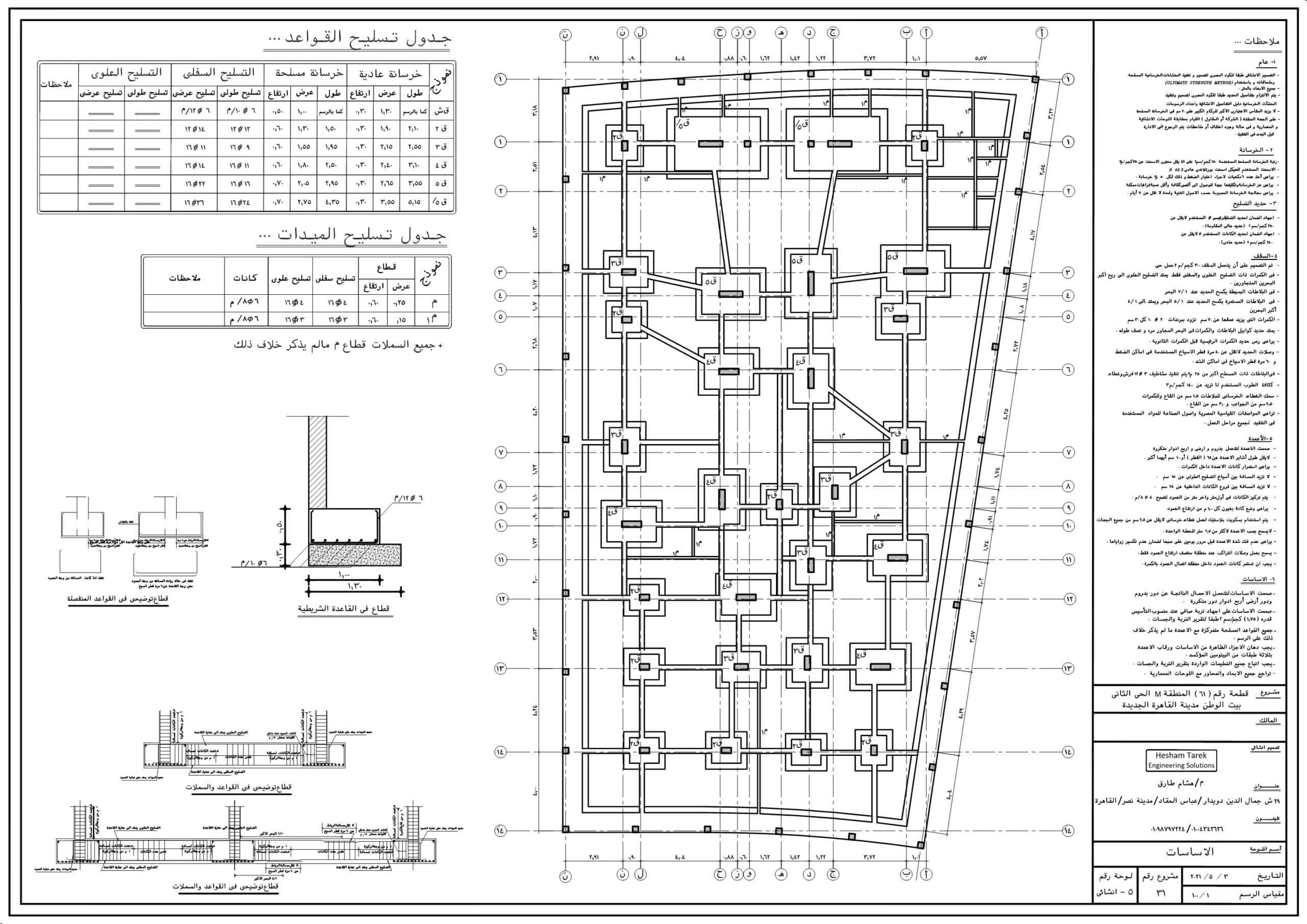
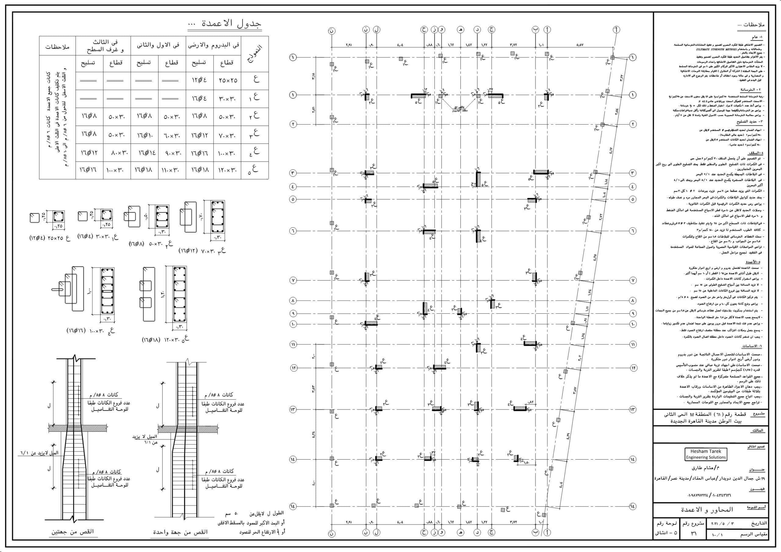
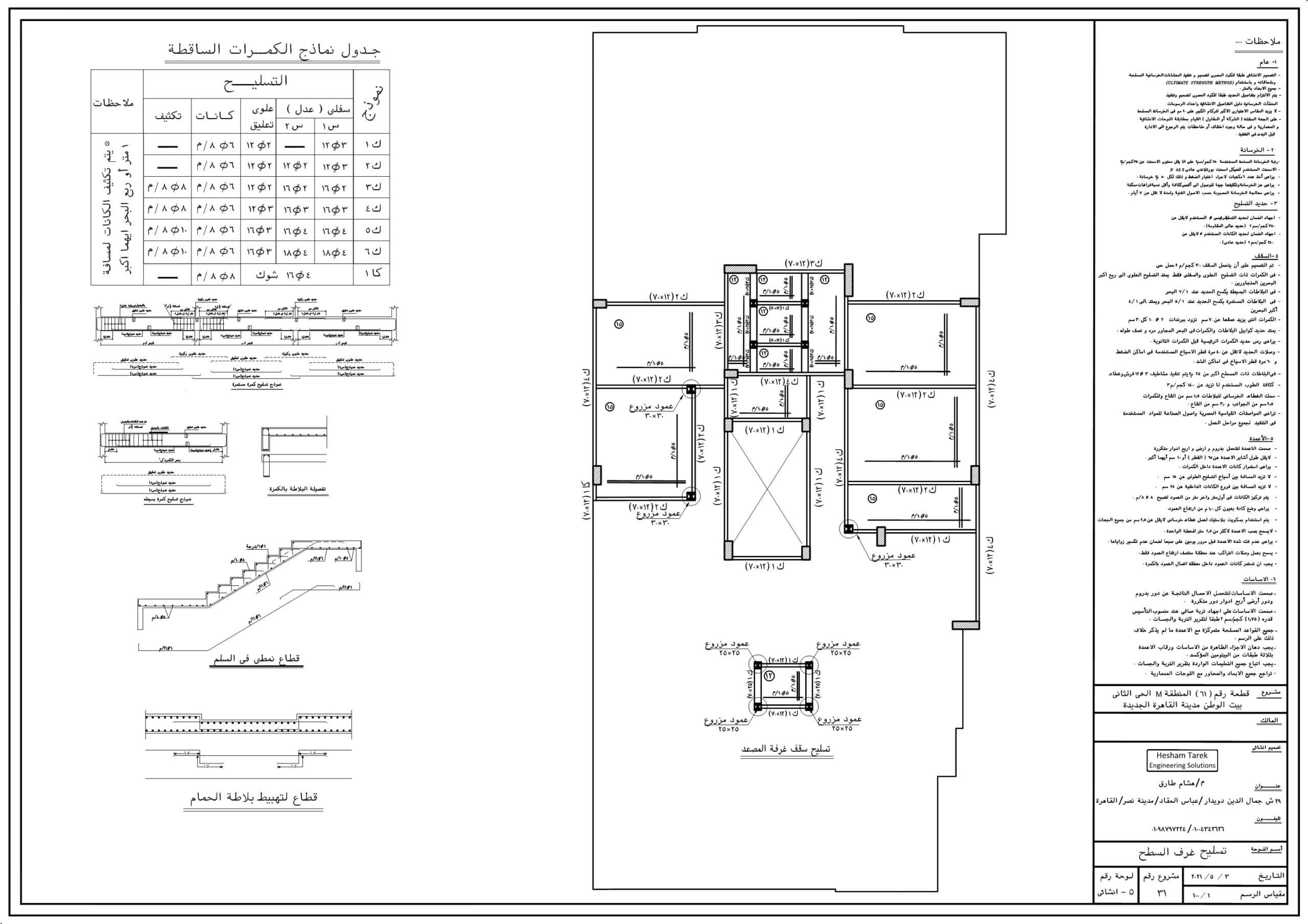
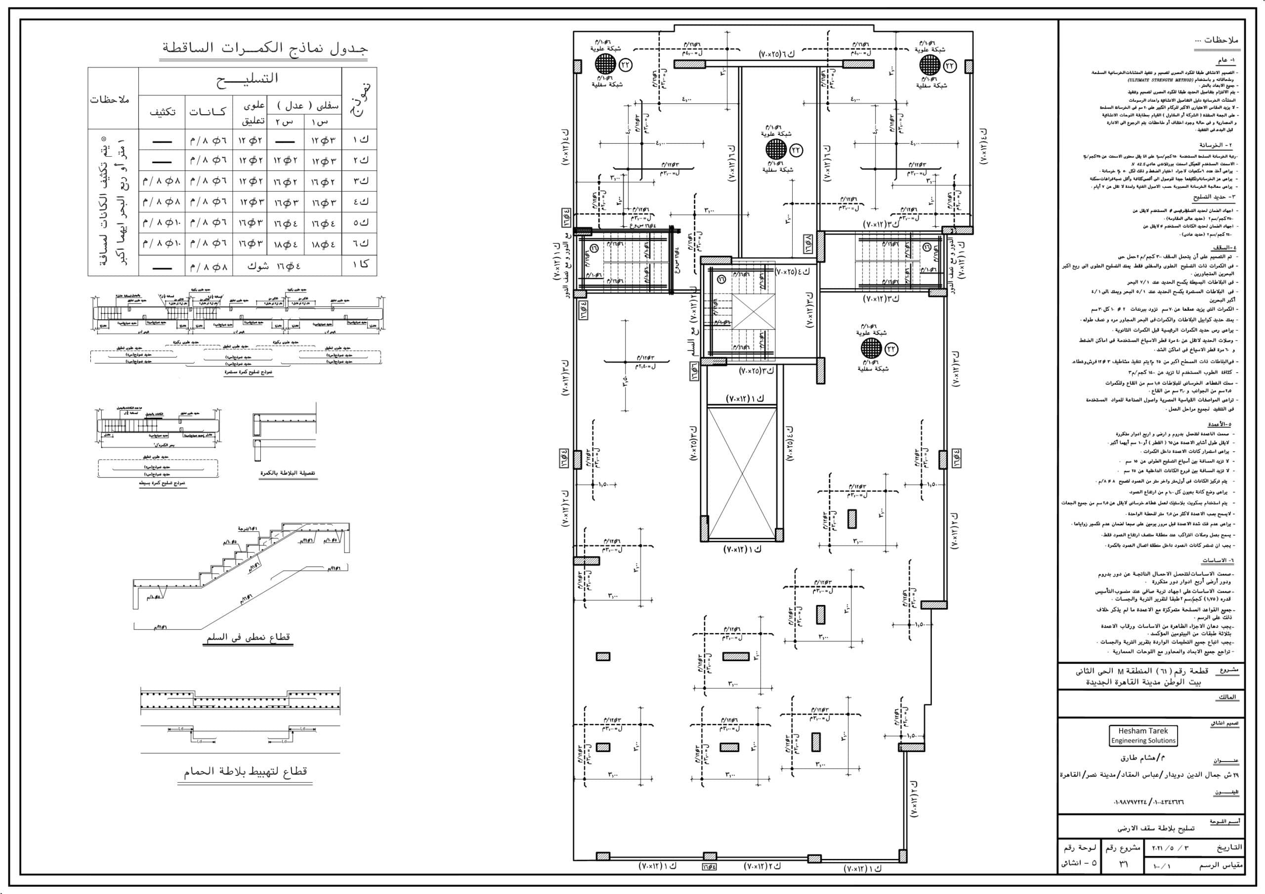
تم عمل تصميم إنشائي متكامل لهذا المنشأ السكني لصالح شركة الأهرام للتطوير العقار إحدي كبري شركات التطوير العقاري بمصر
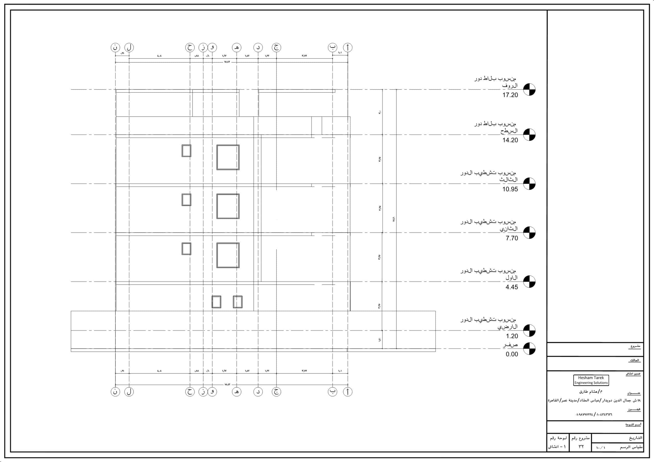
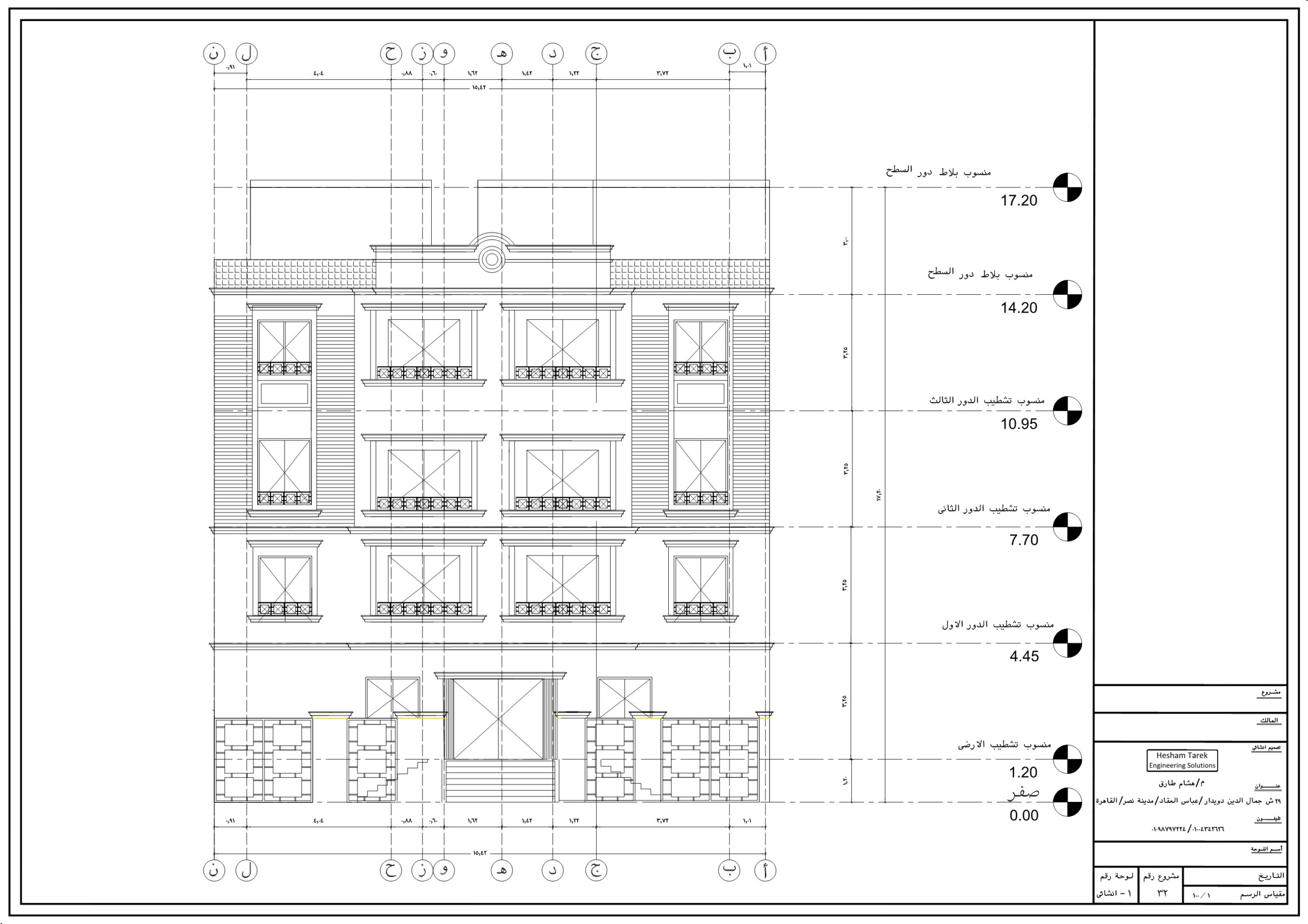
المشروع مكون من بدروم و أرضي و ثلاثة أدوار متكررة و غرف سطح
تم عمل التصميم الإنشائي الأمن و الإقتصادي وفقاً لمعاير و قوانين الكود المصري للتصميم و تنفيذ المنشأت الخرسانية
مكتب المهندس هشام طارق للخدمات الهندسية متخصصون في أعمال التصميم الإنشائي و الشوب دريونج و إعداد قوائم حصر الكميات للتواصل مع قسم التصميم الإنشائي 201004342626

