تاريخ إنجاز المشروع : 12-11-2021
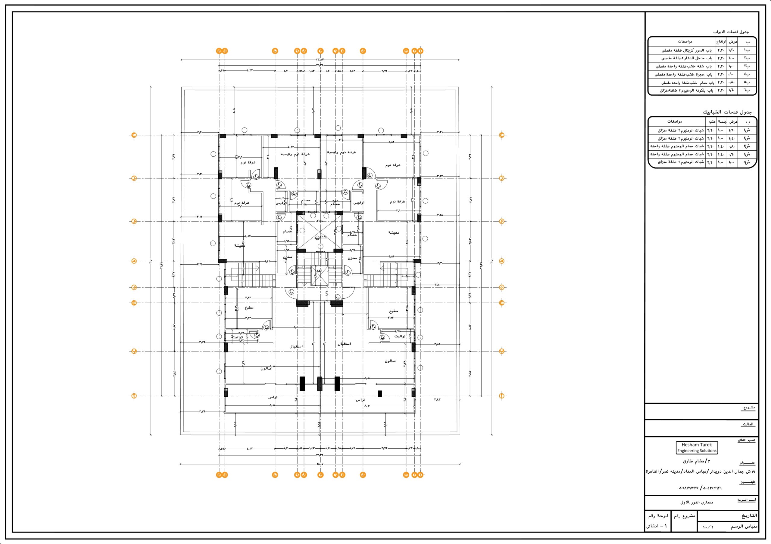
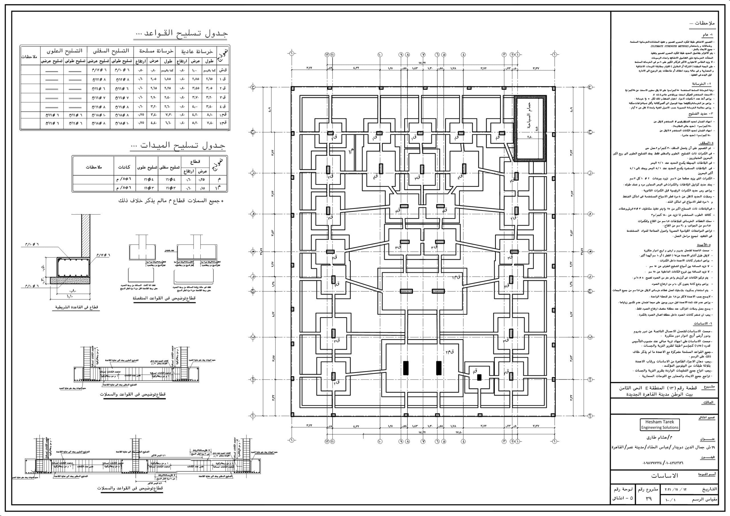
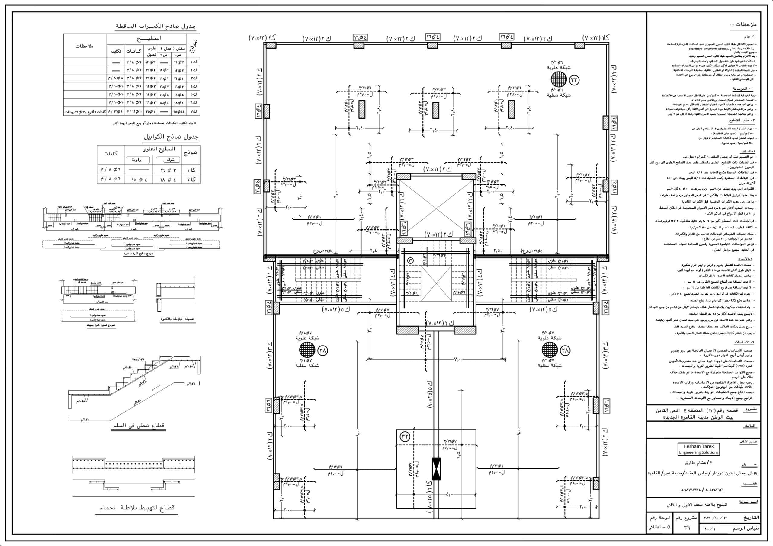
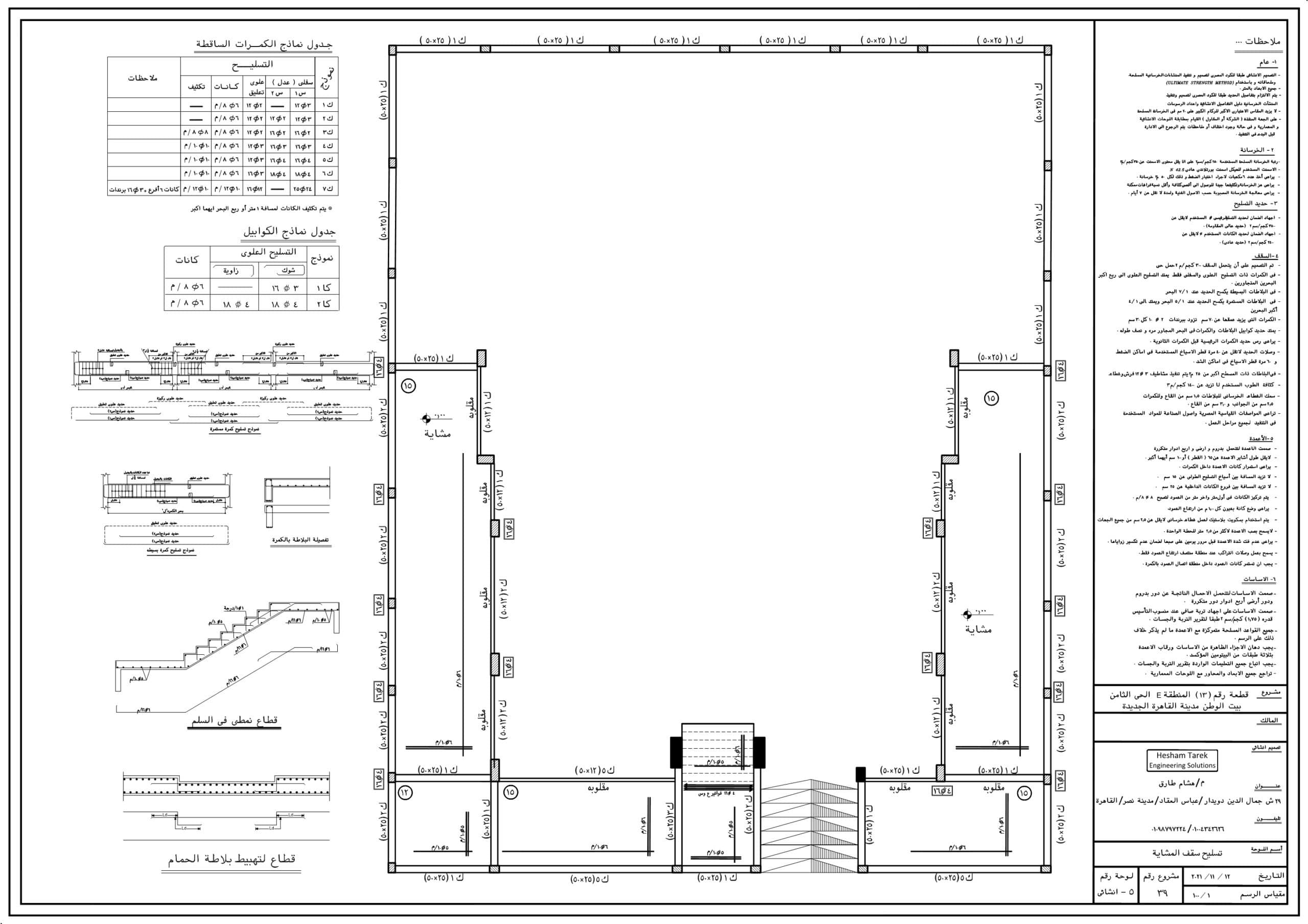
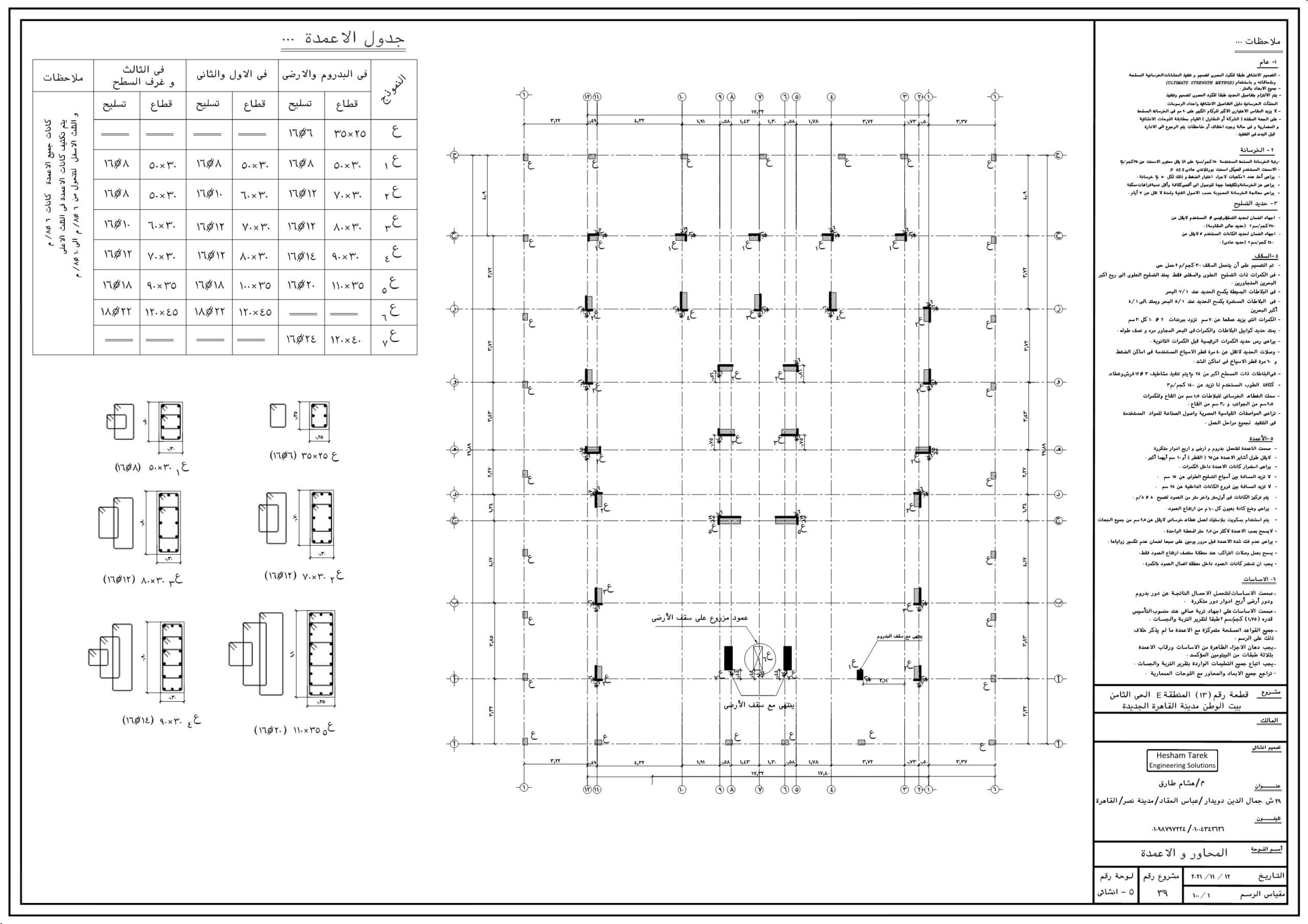
قطعة رقم E-13 الحي الثامن بيت الوطن التجمع الخامس
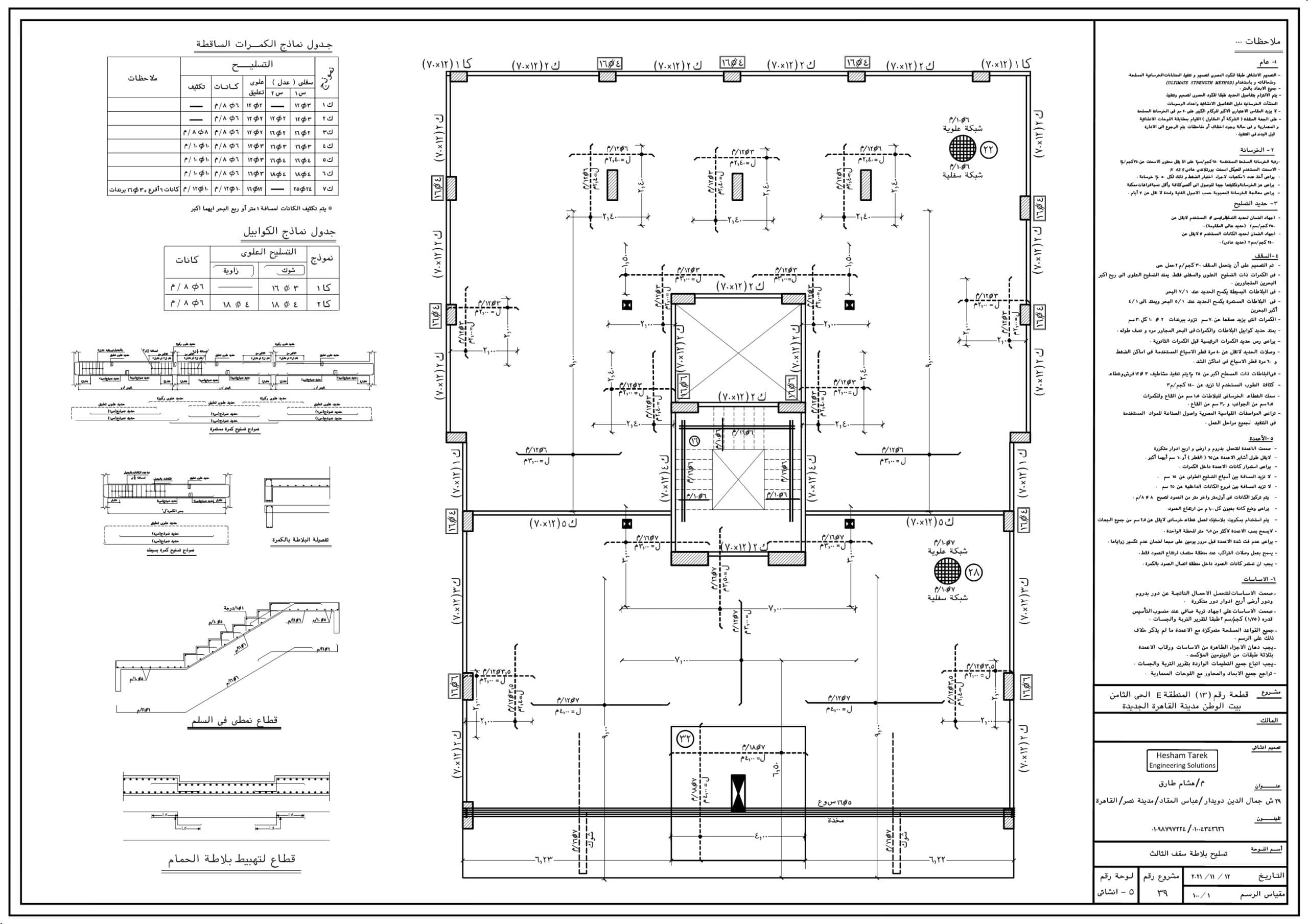
تم عمل تصميم إنشائي متكامل لهذا المنشأ السكني لصالح شركة الأهرام للتطوير العقار إحدي كبري شركات التطوير العقاري بمصر
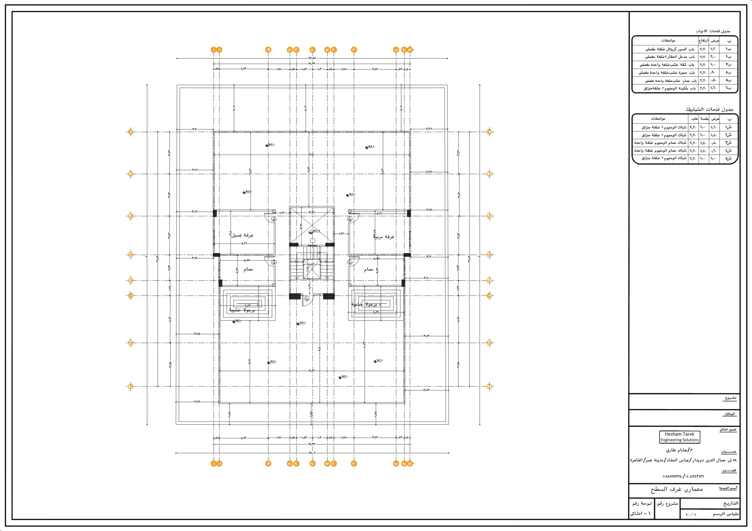
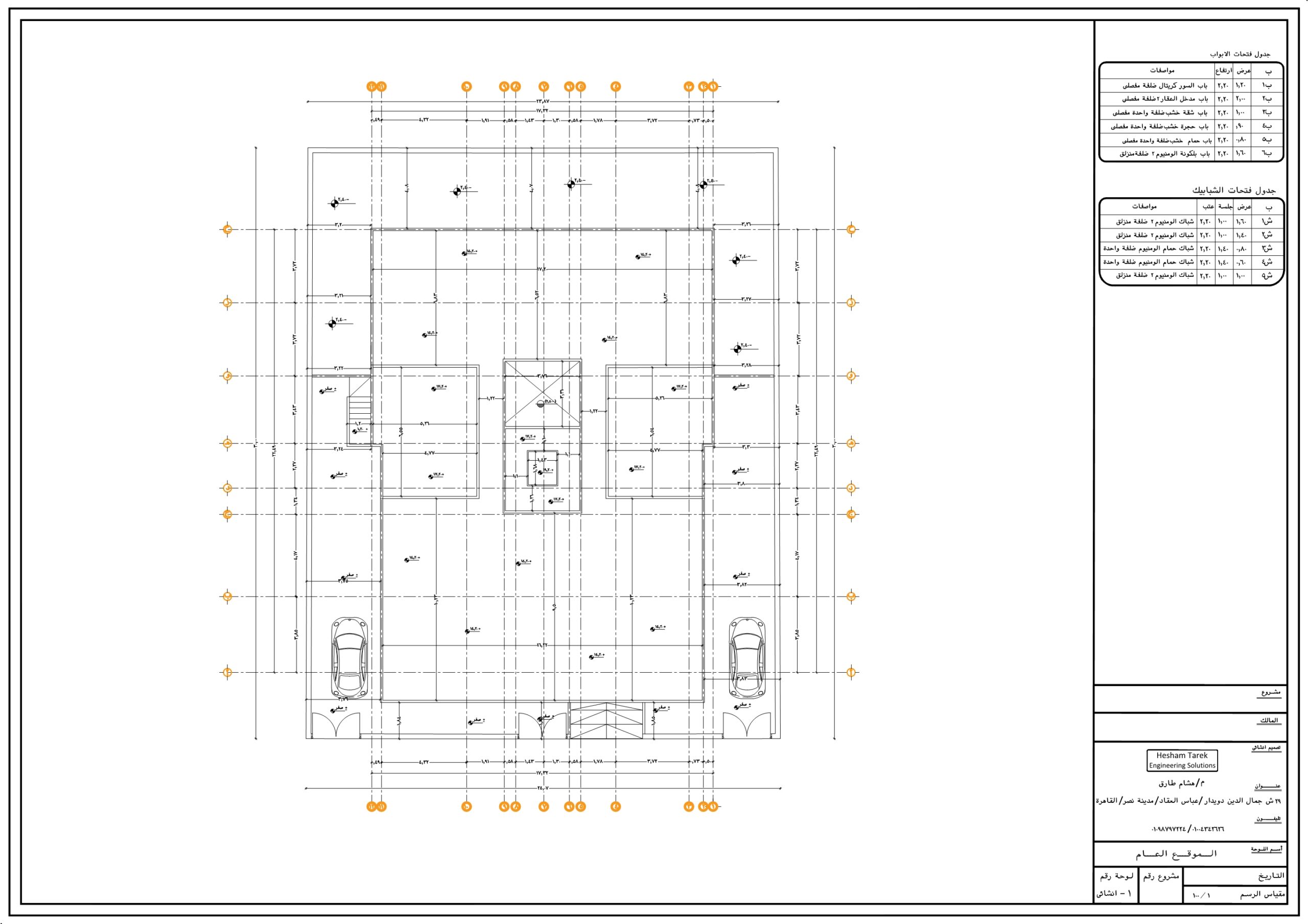
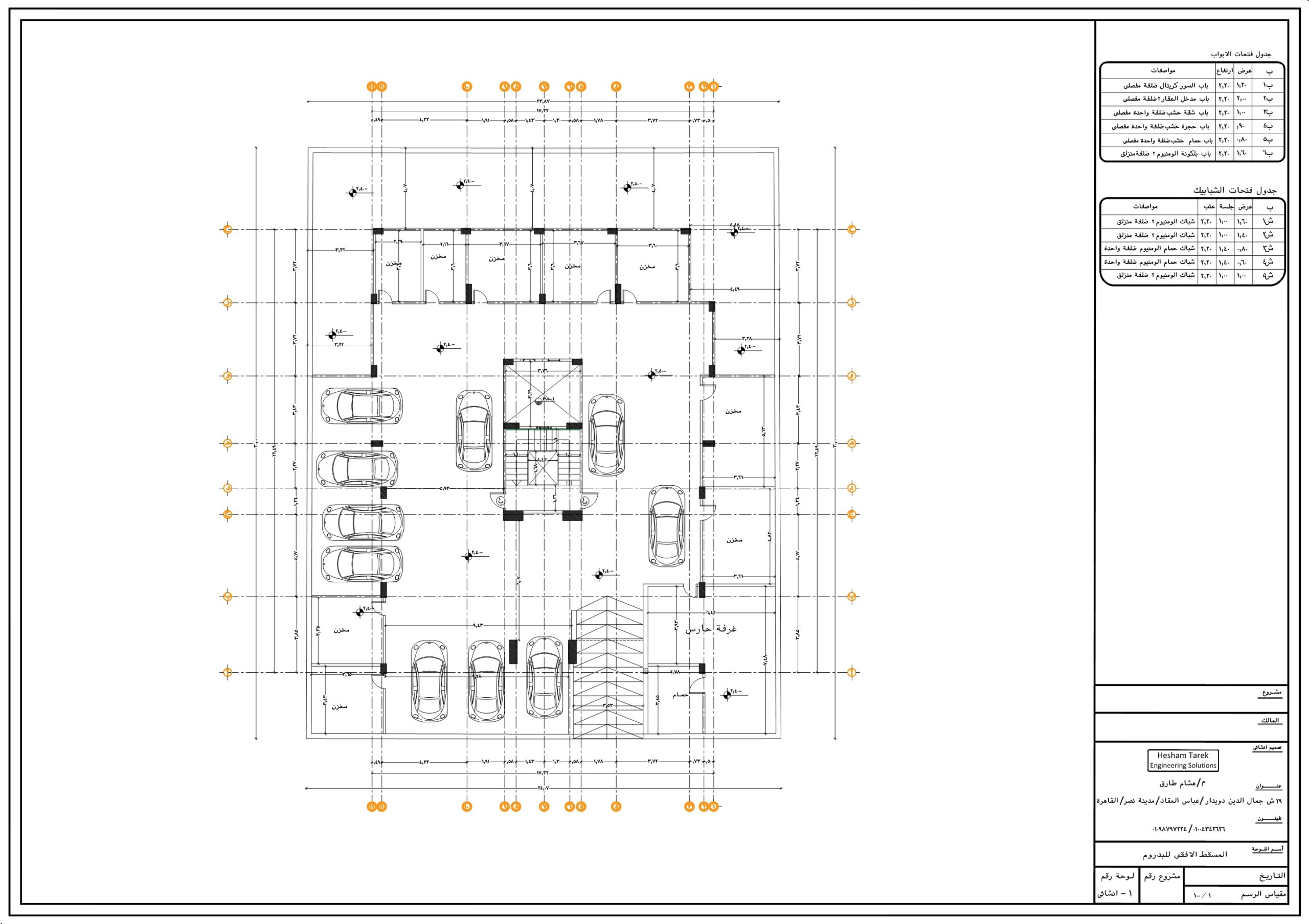
المشروع مكون من بدروم و أرضي و ثلاثة أدوار متكررة و غرف سطح
تم عمل التصميم الإنشائي الأمن و الإقتصادي وفقاً لمعاير و قوانين الكود المصري للتصميم و تنفيذ المنشأت الخرسانية
مكتب المهندس هشام طارق للخدمات الهندسية متخصصون في أعمال التصميم الإنشائي و الشوب دريونج و إعداد قوائم حصر الكميات للتواصل مع قسم التصميم الإنشائي 201004342626

